contact US

 

Guide price £250,000

Property Features

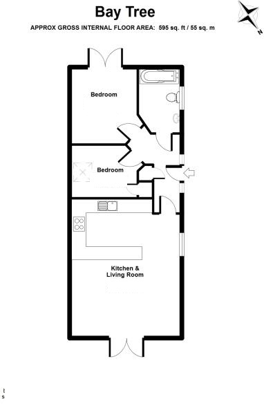
  • Entrance hall, lounge/kitchen/dining room
  • Two bedrooms, bathroom, off-road parking
  • Gardens

Brief Description

*A stylish, single-storey two-bedroom property* Large lounge/dining/kitchen with French doors onto an enclosed patio garden*Off-road parking*No onward chain.

Main Description

*A stylish, single-storey two-bedroom property* Large lounge/dining/kitchen with French doors onto an enclosed patio garden*Off-road parking*No onward chain.

Situation: The property lies within the popular village of Cranmore which has a good local pub which serves food, the Cranmore Steam Railway and nearby facilities in the towns of Shepton Mallet (3 miles) and Frome (4 miles) which has a comprehensive range of independent shops, boutiques, cafes and bistros together with national chains including Marks and Spencer. The Georgian City of Bath lies approximately fourteen miles.

Description: Formerly the local post office, this property has been the subject of extensive work and has been extended to create this stylish single-storey dwelling. Most work has been carried out in the last fifteen years and the oil-fired boiler was replaced less than five years ago. The open-plan kitchen/dining/living room has French doors onto a front enclosed garden with adjacent parking for at least three cars. This attractive village home is sold with the benefit of no onward chain.

Entrance Hall: With a double glazed front door and side panels, tiled floor, radiator, storage cupboard and door to:

Lounge/Kitchen/Dining Room: 19'7" x 15'7" With a double glazed window to the side and double, sealed double glazed French doors to the front. The entire area is tiled with two radiators and a comprehensive range of cream-finish fitted units with solid wood worksurfaces comprising a stainless steel single drainer sink with Monobloc mixer tap, adjacent worksurfaces with drawers and cupboards beneath incorporating an electric oven and ceramic four-ring hob, space and plumbing for a washing machine and tumble dryer, wall cupboard units incorporating an extractor hood.

Bathroom: With a white suite comprising a panelled bath with adjacent ceramic wall tiling and a thermostatic shower, glazed shower screen, low level WC, pedestal wash basin, tiled floor, chrome-finish vertical towel rail/radiator and built-in cupboards. Obscured double glazed window to the side.

Bedroom One: 10'7" x 9'8" maximum With a wardrobe recess with shelf and hanging rail, engineered wood floor, radiator and double, sealed double glazed French doors onto a small gravelled rear garden area.

Bedroom Two: 10'7" x 7'5" With an engineered wood floor, built-in wardrobe, radiator and double glazed roof light.

Outside: The property is approached via a tarmacked driveway with flowerbeds. To the front is a paved area providing a shady and partly-screened seating area. A side pathway leads to a gravelled area which is accessed via a side pathway.

Viewing by appointment through the selling agents McAllisters:



Viewing

Please contact us on 01373 453 592 if you wish to arrange a viewing appointment for this property, or require further information.

Disclaimer

McAllisters Frome endeavour to maintain accurate depictions of properties in Virtual Tours, Floor Plans and descriptions, however, these are intended only as a guide and purchasers must satisfy themselves by personal inspection.
IE8 Alert! Cookie Alert!

To get the best possible experience using our website we recommend you upgrade to a modern web browser. More info