contact US

 

Offers over £875,000

Property Features

  • Entrance hall, kitchen/dining/family room
  • Utility room, cloakroom, inner hall
  • Sitting room, first floor, landing
  • Two double sized bedrooms
  • Second floor, landing, further double bedroom
  • Spacious bathroom, 90' rear garden
  • With further garden areas to
  • A self contained one bedroom cottage
  • Off road parking

Brief Description

*A substantial, three double bedroom Victorian town house with a separate self-contained cottage*Superb kitchen/dining/family room with almost full width bi-fold doors onto a large enclosed rear garden*Spacious second floor bathroom with roll (truncated)

Main Description

*A substantial, three double bedroom Victorian town house with a separate self-contained cottage*Superb kitchen/dining/family room with almost full width bi-fold doors onto a large enclosed rear garden*Spacious second floor bathroom with roll top bath and separate shower enclosure*Self-contained double bedroom cottage providing a variety of uses (subject to the usual planning consent)*Off road parking

Situation: The property is situated just a stone’s throw from Victoria Park, Somerset Road and Weymouth Road. Being well under 1/4 mile from the popular Avanti school the town centre also lives nearby with the popular Badcox area lying closest and providing access into the St. Catherines area of Frome with its comprehensive range of independent shops, boutiques, cafes and bistros. The popular town of Bruton lies approximately 6 miles and the Georgian city of Bath approximately 13 miles.
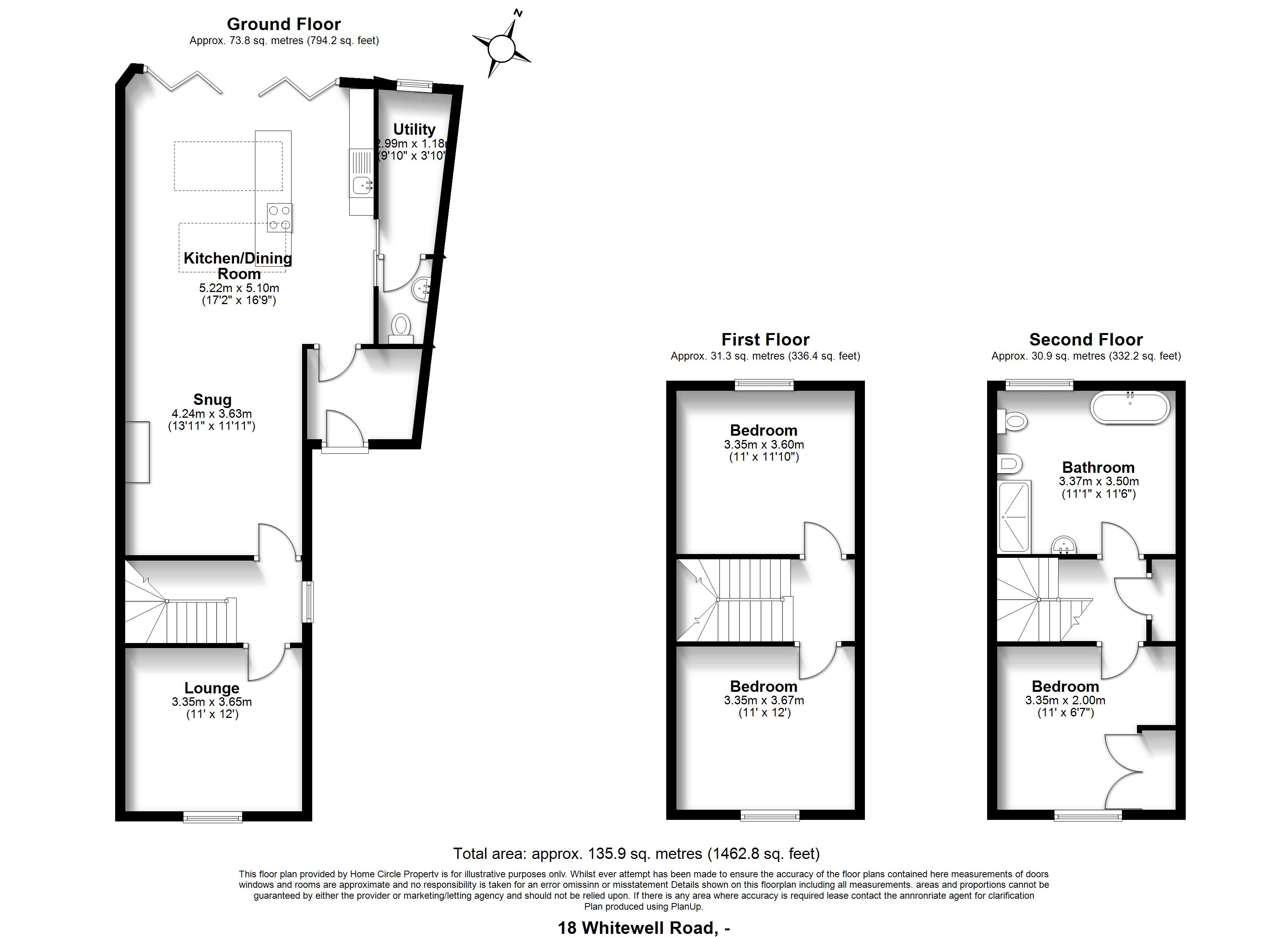
Description: Believed to date from 1890 this attractive late Victorian town house has been the subject of extensive work by the current owner to create a superb contemporary extension which blends well with the original character and features of this period property. A substantial kitchen/dining/family room forms the hub and the house with a large island and fitted units together with bi-fold doors opening directly onto the substantial rear garden. The extension also incorporates a utility room and downstairs cloakroom together with a separate entrance hall. To the first floor there are two double bedrooms and to the second floor a further double sized bedroom and bathroom which has been re-fitted and incorporates a roll top bath and separate shower enclosure. At the end of the 90' garden is a cottage which provides a self-contained one bedroom single storey dwelling with a kitchen/living room, bedroom and bathroom. This is currently used as a separate lettable property but would equally be perfect as ancillary accommodation for the main house or as a studio
Accommodation: All dimensions being approximate.
Entrance Hall: With a substantial panel front door and obscure glazed side panel, roof light and door to:
Kitchen/Dining/Family Room: 31'6"x16'2" With the original area creating a cosy sitting room with a wood burning stove with an engineered oak floor which extends through to the kitchen/dining area which incorporates a range of units with solid work surfaces, porcelain single drainer sink, large island unit with an integrated oven and gas five ring hob, space and plumbing for a dishwasher, eye level cupboard units and bi-fold doors spanning a 13'8" width across the back of this room and providing access onto the garden. Two large roof lights provide ample natural light and there is under floor heating provided by the central heating boiler. Sliding door to:
Utility Room: 9'5"x5' With space and plumbing for a washing machine and tumble drier, work surface, wall cupboard units, double glazed window to the rear and door to:
Cloakroom: With a white suite comprising a low level WC, vanity wash basin and roof light.
Sitting Room: 12'x11' With a upvc sealed double glazed sliding sash window to the front, fireplace with a wood burning stove, radiator and picture rail.
Inner Hall: With a double glazed window to the side, tiled floor, large understairs cupboard and original staircase rising to the:
First Floor:
Landing: With a sash window to the side, staircase rising to the second floor and doors to:
Bedroom 1: 12'x11'1" With a painted wood floor, radiator and sash window to the front.
Bedroom 2: 12'x11'" With a sash window to the rear, original cast iron fireplace, painted wood floor and radiator.
Second Floor:
Landing: With a storage cupboards and cupboard housing a Viessmann gas fired combination boiler supplying domestic hot water and central heating via radiators and an underfloor system to the ground floor rear extension.
Bedroom 3: 11'10"x11' With built-in wardrobes, a radiator and a sash window to the front elevation.
Spacious Family Bathroom: 11'10x11' average. With a large walk-in tiled shower enclosure with overhead rain shower and separate hand shower, roll top bath with chrome taps and a shower attachment, low level WC, bidet, chrome finish vertical towel rail/radiator, separate radiator and sash window to the rear.
Outside: The property is approached via a access way to the and beyond this a side wooden gate which in turn leads to the:
Rear Garden: Which measures approximately 90' in length by 32' in width comprising a large lawned area beyond which is an area reserved for the cultivation of vegetables. There is vehicular and pedestrian access via Whitewell Place and for the cottage at the rear via Somerset Road. A wooden shed, fencing and gateway in turn leads to the;
Cottage Garden: With a beautiful oak tree, lawn raised beds and an original stone wall with cock and hen detailing.
Cottage/Annexe:
Open Plan Sitting/Dining/Kitchen: 21'7 average x 9'6" With an oak floor, wood burning stove, exposed beams, two upvc sealed double glazed windows to the front, front door and a range of cream finished fitted kitchen units incorporating a sink, oven, hob, space for a fridge/freezer, wall cupboard units incorporating an extractor hood. Electric panel radiator. Door to:
Inner Hall: With a wooden floor, double glazed window to the front, beam, door to the double bedroom and further door to:
Bathroom: With a white suite comprising a pedestal wash basin, panel bath with shower and shower screen, vertical towel rail/radiator.
Double Bedroom 13'2" average x 8'6" With an oak floor, double glazed window, electric panel radiator and ceiling beam.
Bathroom: With a white suite comprising a panelled bath, pedestal wash basin and low level WC.
Double Bedroom: With a double glazed window to the side and an electric panel radiator.



Viewing

Please contact us on 01373 453 592 if you wish to arrange a viewing appointment for this property, or require further information.

Energy Performance Certificate

Click here to view the Energy Efficiency Rating and Environmental Impact Rating for this property.

Disclaimer

McAllisters Frome endeavour to maintain accurate depictions of properties in Virtual Tours, Floor Plans and descriptions, however, these are intended only as a guide and purchasers must satisfy themselves by personal inspection.
IE8 Alert! Cookie Alert!

To get the best possible experience using our website we recommend you upgrade to a modern web browser. More info