contact US

 

OIRO £700,000 (Sold Subject To Contract)

Property Features

  • Entrance hall, living room, office/yoga room
  • Lower ground floor, snug, shower room
  • Kitchen/dining room, guest bedroom five
  • First floor landing, three bedrooms (of which two are of A generous double-size)
  • Shower room, second floor landing
  • Principal bedroom with ensuite bathroom and walk-in wardrobe, well-stocked rear garden and parking.

Brief Description

*An elegant, extended five-bedroom, three bathroom, four-storey Edwardian town house*Superb kitchen/dining room with bi-fold doors onto a large patio and enclosed rear garden*Two reception rooms*Principal bedroom to the second floor with a (truncated)

Main Description

*An elegant, extended five-bedroom, three bathroom, four-storey Edwardian town house*Superb kitchen/dining room with bi-fold doors onto a large patio and enclosed rear garden*Two reception rooms*Principal bedroom to the second floor with a walk-in wardrobe and ensuite bathroom with roll top bath*Off-road parking for two vehicles to the rear of the property*No onward chain.

Elegant Five-Bedroom Edwardian Townhouse | Four Storeys | No Onward Chain

Key Features

• Beautifully presented Edwardian townhouse (c.1906) arranged over four floors
• Five bedrooms including superb second-floor principal suite with walk-in wardrobe and ensuite
• Stunning full-width kitchen/dining room with skylights and bi-fold doors to landscaped garden
• Lower ground floor snug, shower room and guest bedroom
• Elegant living room with period features and bay sash window
• Office/yoga room with storage and laundry facilities
• Landscaped 71ft rear garden with terraces and lawn
• Off-road parking for at least two vehicles
• Short walk to Frome town centre and train station
• No onward chain

Property Description

An elegant and extended five-bedroom Edwardian townhouse offering generous and versatile accommodation across four storeys. Dating from 1906, the property retains much of its period charm, exposed floorboards, sash windows, cornicing and original cabinetry, while benefiting from thoughtful modern improvements.
The house is situated in one of Frome’s most attractive residential areas, within easy walking distance of the town centre’s independent shops, cafés and bistros, as well as Frome train station. Bath is approximately thirteen miles away.
A standout feature is the full-width kitchen/dining room on the lower ground floor, opening directly onto a beautifully landscaped 71ft rear garden. The property also provides excellent bedroom space, including a superb principal suite on the top floor with expansive countryside views.
Offered for sale with no onward chain.

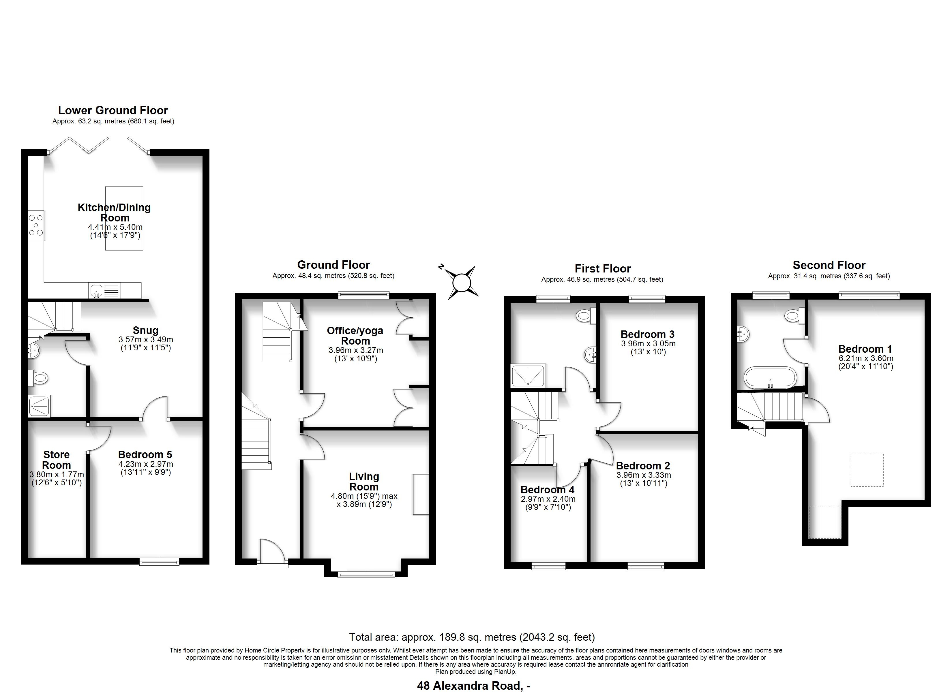
Accommodation

Ground Floor
• Entrance Hall with original part-glazed door, exposed floorboards, period radiator and staircases to upper and lower floors
• Living Room featuring bay sash window, cornicing, decorative fireplace with gas Living Flame fire and built-in cabinetry
• Office/Yoga Room with period radiator, sash window, exposed floorboards and two large cupboards (boiler and laundry storage)
Lower Ground Floor
• Kitchen/Dining Room with stone worktops, central island, skylights, limestone flooring, range cooker and full-width bi-fold doors to the garden
• Snug with limestone flooring, storage and access to guest bedroom and kitchen
• Shower Room with thermostatic shower, pedestal basin, WC and towel radiator
• Guest Bedroom (Bedroom Five) with built-in cupboards, shelving and access to basement storage

First Floor
• Bedroom Two (double) with built-in wardrobe, desk and shelving
• Bedroom Three (double) with sash window, radiator, desk and shelving
• Bedroom Four with sash window
• Shower Room with limestone tiling, rain shower, oak vanity basin, WC and sash window
Second Floor
• Principal Bedroom with large dormer, countryside views towards Cley Hill, Velux rooflights, built-in wardrobe, walk-in wardrobe and eaves storage
• Ensuite Bathroom with roll-top bath, pedestal basin, WC and window to the rear

Outside
• Front: Cobbled path, gravelled area, planted borders, low stone wall and wrought iron railings
• Rear Garden: Approx. 71ft with upper terrace, central lawn, lower lawn, further terrace, garden shed and gated access to rear parking
• Parking: Off-road parking for at least two vehicles

Viewing strictly by appointment through McAllisters:



Viewing

Please contact us on 01373 453 592 if you wish to arrange a viewing appointment for this property, or require further information.

Energy Performance Certificate

Click here to view the Energy Efficiency Rating and Environmental Impact Rating for this property.

Disclaimer

McAllisters Frome endeavour to maintain accurate depictions of properties in Virtual Tours, Floor Plans and descriptions, however, these are intended only as a guide and purchasers must satisfy themselves by personal inspection.
IE8 Alert! Cookie Alert!

To get the best possible experience using our website we recommend you upgrade to a modern web browser. More info